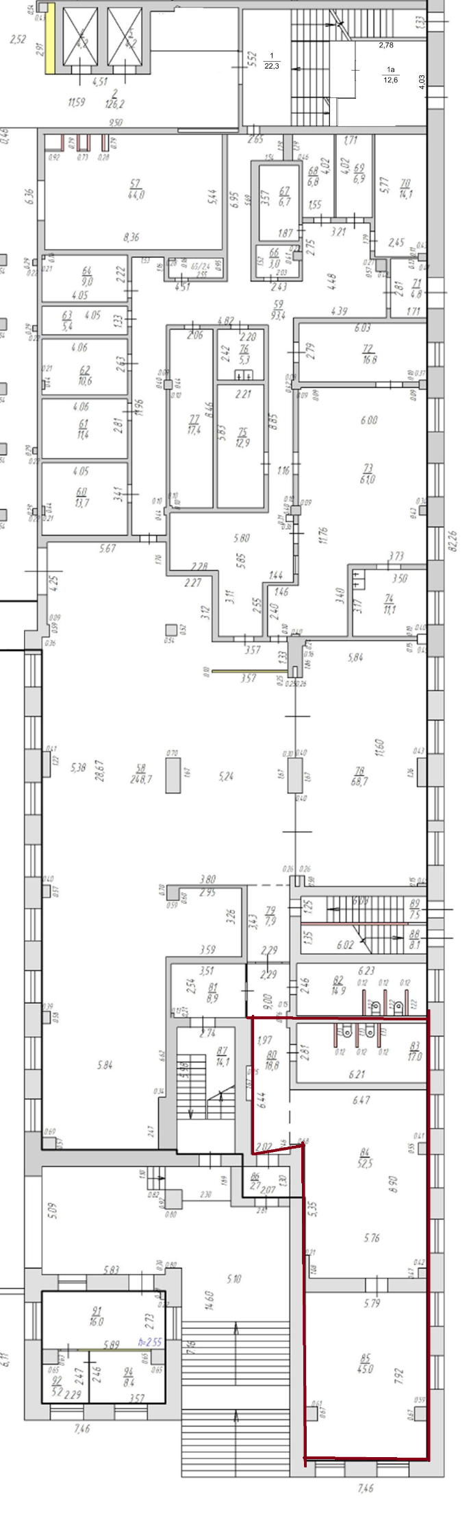
Офисное помещение
Офисное помещение:
- общая площадь 460 кв.м.
- расположен на 1 этаже 7-этажного здания;
- состоит из нескольких помещений;
- сан.узел;
- возможность аренды части помещения.
Офисное помещение
Офисное помещение:
- общая площадь 127.3 кв.м.
- расположен на 1 этаже 7-этажного здания;
- состоит из нескольких помещений;
- сан.узел;
- отдельный вход.
Офис № 110
Офисное помещение:
- Отдельно стоящее помещение
- Общая площадь 29,6 кв.м
- Состоит из двух помещений
- Сан узел
Офис № 111 с отдельным входом
Офис № 111 с отдельным входом
- общая площадь 60,4 кв.м.
- расположен на 1 этаже 7-этажного здания;
- состоит из 3 помещений;
- кондиционер;
- сан.узел.
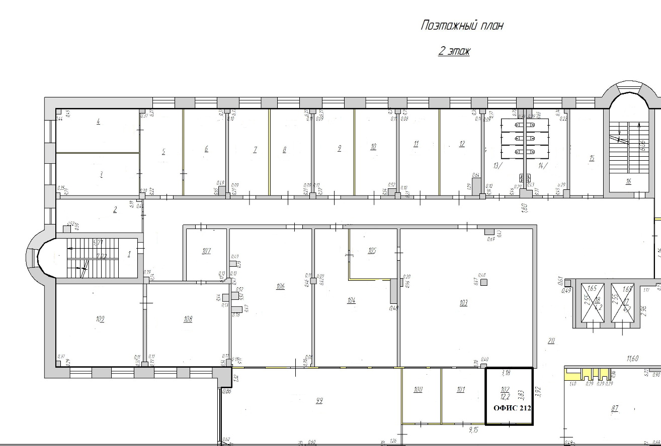
Офис № 212
Офис № 212
- общая площадь 12,2 кв.м;
- без окна (сниженная арендная ставка);
- расположен на 2 этаже 7-этажного здания;
Офис № 216
Офис № 216
- общая площадь 10,2 кв.м;
- без окна (сниженная арендная ставка);
- расположен на 2 этаже 7-этажного здания;
Офис № 314А
Офис № 314А
- общая площадь 51,3 кв.м
- расположен на 3 этаже 7-этажного здания;
- кондиционер;
- состоит из трёх помещений.
Офис № 314Д
Офис № 314Д
- общая площадь 19,8 кв.м
- расположен на 3 этаже 7-этажного здания;
- состоит из двух смежных помещений.
Офис № 401
Офис № 401
- общая площадь 51,6 кв.м;
- расположен на 4 этаже 7-этажного здания;
Офис № 404
Офис № 404
- общая площадь 16,1 кв.м;
- без окна (сниженная арендная ставка);
- расположен на 4 этаже 7-этажного здания;
Офис № 407
Офис № 407
- общая площадь 35,1 кв.м;
- расположен на 4 этаже 7-этажного здания;
Офис № 409
Офис № 409
- общая площадь 35,0 кв.м;
- расположен на 4 этаже 7-этажного здания;
Офис № 411
Офис № 411
- общая площадь 34,4 кв.м;
- без окна (сниженная арендная ставка);
- расположен на 4 этаже 7-этажного здания;
Офис № 423
Офис № 423
- общая площадь 47,7 кв.м.
- расположен на 4 этаже 7-этажного здания;
- состоит из четырех помещений;
- кондиционер;
Офис № 501
Офис № 501
- общая площадь 51,1 кв.м.
- расположен на 5 этаже 7-этажного здания;
- кондиционер;
Офис № 512
Офис № 512
- общая площадь 12,5 кв.м;
- без окна (сниженная арендная ставка);
- расположен на 5 этаже 7-этажного здания;
Офис № 513
Офис № 513
- общая площадь 16,6 кв.м;
- расположен на 5 этаже 7-этажного здания;
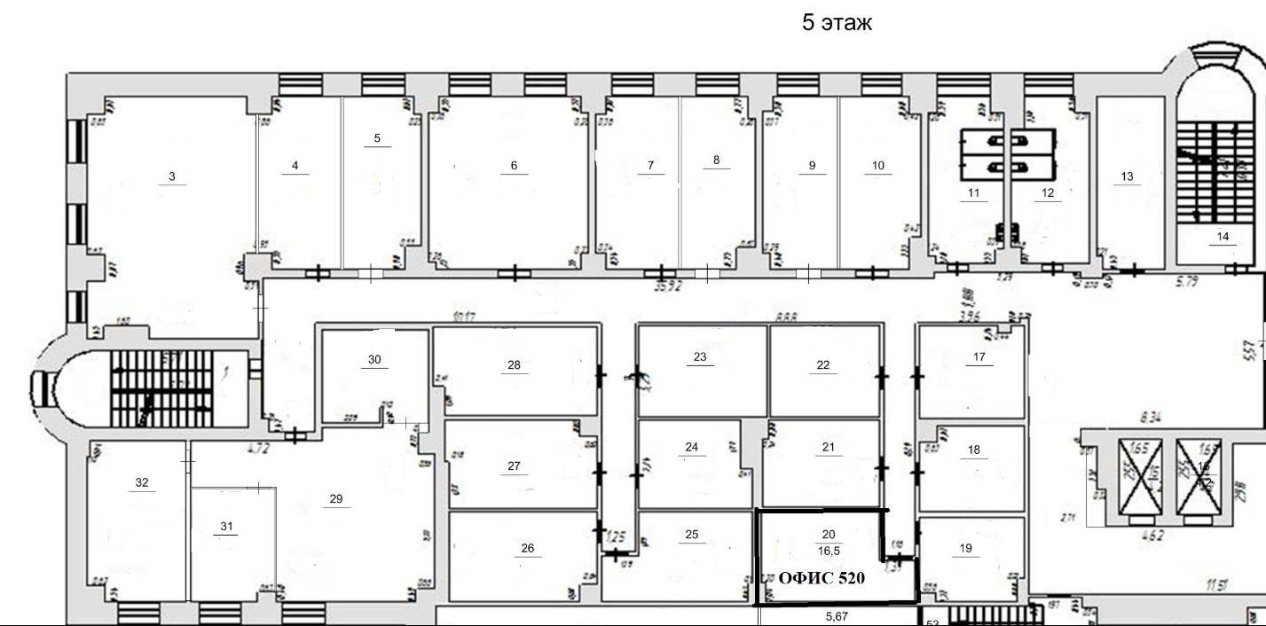
Офис № 520
Офис № 520
- общая площадь 16,5 кв.м;
- расположен на 5 этаже 7-этажного здания;
- без окна (сниженная арендная ставка);
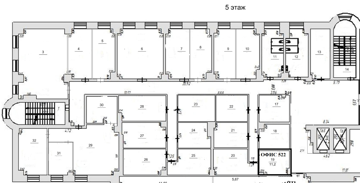
Офис № 522
Офис № 522
- общая площадь 11,2 кв.м;
- расположен на 5 этаже 7-этажного здания;
- без окна (сниженная арендная ставка);
Офис № 526
Офис № 526
- общая площадь 12,7 кв.м;
- без окна (сниженная арендная ставка);
- расположен на 5 этаже 7-этажного здания;
